Volver al home
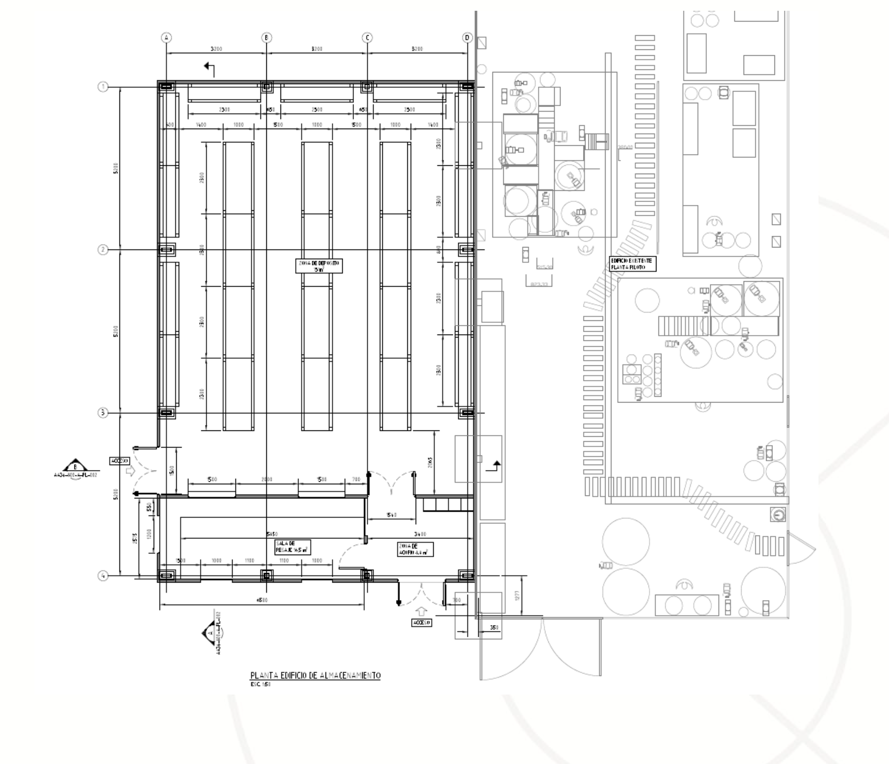
Edificio Almacenamiento - Sales de Jujuy
Diseño de un edificio industrial de depósito desarrollado para la minera Sales de Jujuy, en la provincia de Jujuy, Argentina. El alcance consistió en el desarrollo de la ingeniería adaptada a las condiciones de sitio y a las preferencias constructivas.
Imágenes del Proyecto
Contactanos Email
¿Listo para tu próximo proyecto?
Estamos aquí para ayudarte a transformar tus ideas en realidad. Contactanos y comencemos a trabajar juntos.
Teléfono
+549 381 6585 197
cv.conectaing@gmail.com