Volver a todos los proyectos
Edificio de Pre-Limpieza
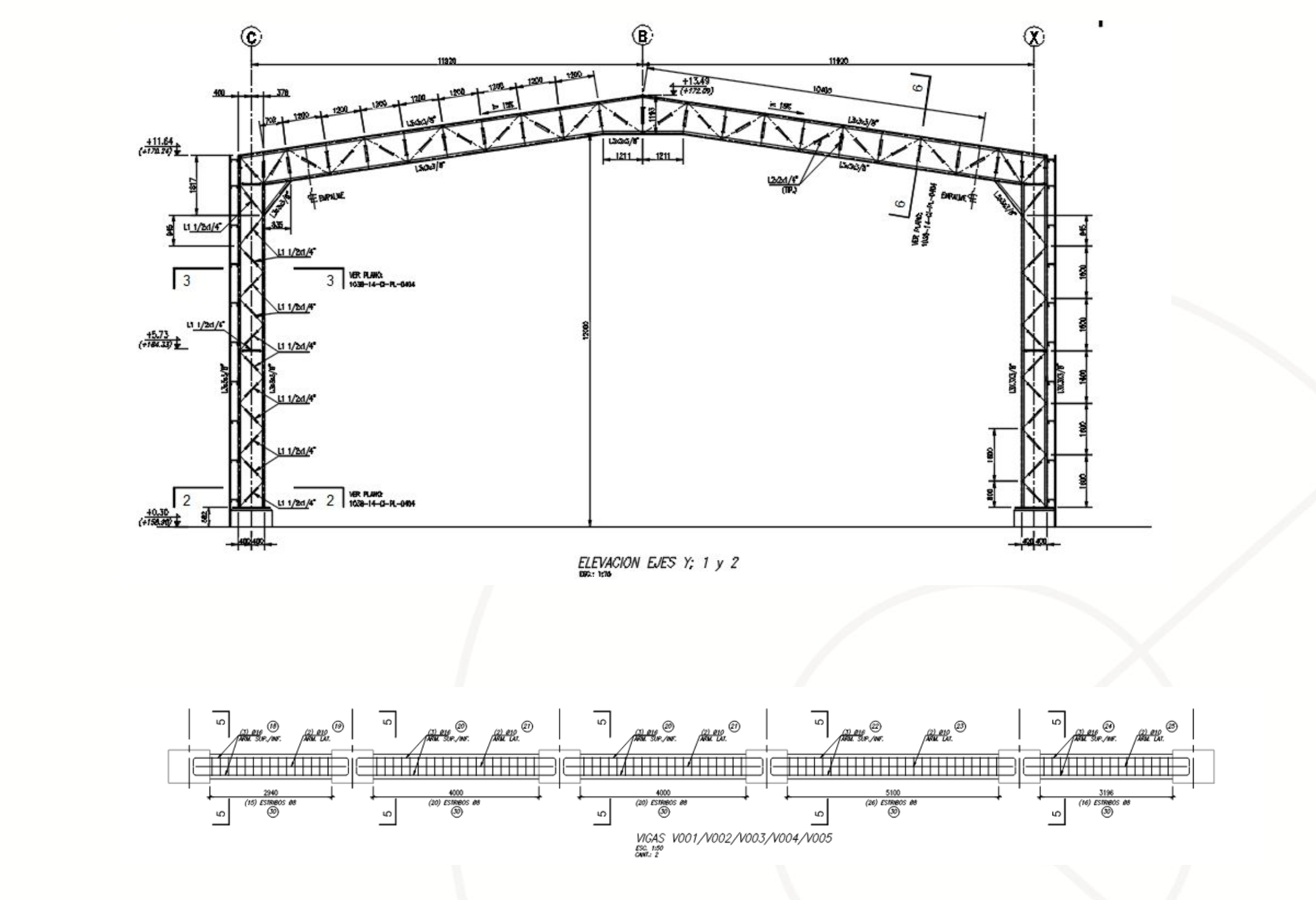
Diseño de un edificio de Pre-Limpieza resuelto mediante una estructura metálica liviana. La estructura está conformada por pórticos con una luz libre de 23 metros, considerando como principal condición de diseño las cargas de viento propias del emplazamiento y las condiciones de cerramiento del edificio.
Datos Técnicos
- Estructura metálica liviana con pórticos
- Luz libre: 23 metros
- Condición de diseño principal: cargas de viento del emplazamiento
Imágenes del Proyecto
Contactanos Email
¿Listo para tu próximo proyecto?
Estamos aquí para ayudarte a transformar tus ideas en realidad. Contactanos y comencemos a trabajar juntos.
Teléfono
+549 381 6585 197
cv.conectaing@gmail.com